Leave a Message

Thank you for your message. We will be in touch with you shortly.

Explore Our Properties

Property Description

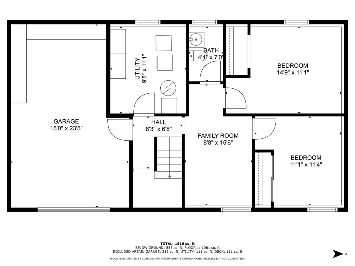
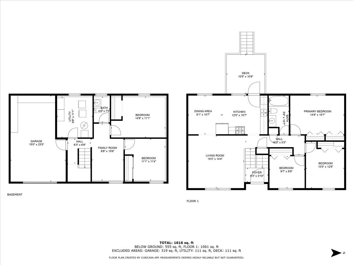
Welcome to 6860 Valley View Rd, a beautifully refreshed split-level home tucked away in one of Hanover Park's most desirable residential pockets. This spacious five-bedroom residence-three upstairs and two on the lower level-offers a flexible layout designed to meet today's evolving needs. The main level features gleaming hardwood floors in the living room and laminate flooring in all three upstairs bedrooms, while newer windows throughout the home fill the space with natural light. A full bath on the main level provides everyday convenience, and the thoughtful floor plan connects the living room and kitchen on the same level, making it ideal for both relaxed living and effortless entertaining. The fully finished lower level offers two additional bedrooms, a newly updated half bath, new flooring, fresh paint, and a large second family room. With a 220-volt outlet already installed, this area offers potential for a related living setup. Mechanical updates include a roof approximately eight years old, a furnace installed in February 2023, AC from July 2019, and a 40-gallon water heater from 2015. Additional features include a side-by-side washer and dryer, a 1.5-car attached garage (no opener), and a fully fenced backyard-perfect for gatherings, pets, or peaceful evenings under the stars. This move-in ready home blends comfort, versatility, and location, all within reach of parks, schools, and local amenities.

Overview

Property Status
Sold
Lot Size
9,147.6 Sq.Ft.
MLS ID
12347153
Property Type
Residential
Year Built
1965

Features & Amenities

Garage Spaces
1.0
Water Source
Public
Parking
Asphalt, On Site, Garage Owned, Attached, Owned, Garage
Heat Type
Natural Gas
Air Conditioning
Central Air
Appliances
Dishwasher, Refrigerator, Washer, Dryer
Sewer
Public Sewer
Elementary School
Hanover Highlands Elementary Sch
Middle School
Robert Frost Junior High School
High School
Schaumburg High School
School District
211
Sales Price
$335,900
Real Estate Tax
$6,845/yr

Downloads

6860 Valley View Road

Schedule a Tour

We would love to help you see this beautiful home! As a full-service brokerage, we can help you tour. Please submit an offer, and answer questions about the buying process.

Thank you

for your interest in 6860 Valley View Road, Hanover Park, IL 60133

6860 Valley View Road
Navigate

I'm Interested In

6860 Valley View Road

or
  • CallTabren Smith

    License #475194178

    (872) 324-3061
  • Follow Us On Instagram